NO IMAGE
現地
物件画像
NO IMAGE
周辺環境
QRコードをスキャンして携帯でもご覧になれます。

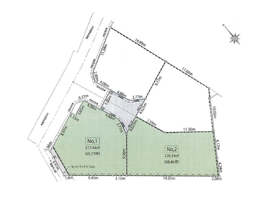
No.2

株式会社 イエスタジオ
吉田 憲司
お問い合わせ先: 0800-100-1755

おすすめコメント

建築条件なし!お好きなハウスメーカーで建築可能◎
スーパー・コンビニなどが徒歩10分圏内で便利な立地です!

お気軽にお問い合わせください。
フリーコール:0800-100-1755

売地
4,990万円
    東京都昭島市田中町2丁目

    青梅線 昭島駅 徒歩 21分

    青梅線 拝島駅 バス 19分 「拝島橋北」 停歩 4分

    NEW現地見学会おすすめ価格変更
    土地面積
    226.34㎡(68.46坪)
    建ぺい率
    40%
    容積率
    80%
    建築条件
    なし
    資料請求今すぐ会員登録するお気に入りに追加
    お問い合わせ先: 0800-100-1755
    物件情報
    名称
    No.2
    価格
    4,990万円
    所在地
    東京都昭島市田中町2丁目
    交通

    青梅線 昭島駅 徒歩 21分

    青梅線 拝島駅 バス 19分 「拝島橋北」 停歩 4分

    土地面積
    226.34㎡(68.46坪)
    地目
    宅地
    土地権利
    所有権
    土地現況
    更地
    建築条件
    なし
    販売区画数/総区画数
    2区画/2区画
    設備・条件
    日当り良好 閑静な住宅街 ガス:都市ガス 汚水:公共下水(使用可) 雑排水:公共下水(使用可) 水道:公営水道(使用可)
    都市計画
    市街化区域
    用途地域
    第一種低層住居専用地域
    建ぺい率/容積率
    40%/80%
    国土法の届出
    不要
    私道負担
    23.32㎡
    接道状況
    一方 幅員5.0m公道
    地域地区
    高度地区
    引渡時期
    相談
    学区

    田中小学校 約700m

    多摩辺中学校 約450m

    物件情報更新日
    2026年03月26日(物件情報更新日より14日以内に更新)
    物件コード
    2513
    取引態様
    仲介
    資料請求今すぐ会員登録するお気に入りに追加
    お問い合わせ先: 0800-100-1755
    株式会社 イエスタジオ
    株式会社 イエスタジオ店舗情報
    〒196-0034
    東京都昭島市玉川町4丁目9-27 1F
    東京都知事(3)92687号
    (公社)全国宅地建物取引業保証協会、(公財)東日本不動産流通機構
    0800-100-1755
    店舗情報
    アクセスマップ
    営業時間:9:30〜20:00
    定休日:水曜日
    全体区画図
    全体区画図
    スマートフォン版の表示に切り替える